Industrial

Our industrial development design activities are associated with either platting the industrial park (preparation of Preliminary Plat, acquisition of boundary & topographic surveying, roadway & infrastructure utility design, storm water management, water quality, erosion control, material quantities, Record Plat, and construction layout) or preparing specific site plans for specific industrial facilities.

 

Stein Industrial Park – City of Canton / Putnam Properties

We were selected as the design engineers for this 46.06 acre project which was a joint effort between the City of Canton and Putman Properties. Cooper & Associates, a Partners company (Cooper), prepared platting documents and all the infrastructure design plans. The infrastructure design provides for storm water management and water quality for the entire industrial park. Additional items of design concern were the remediation of contaminated soils and wetland mitigation.

 

Hydrodec – Hydrodec North America, Inc.

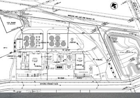
Cooper was selected by Hydrodec (of Australia) to be their surveyor and site engineer for this facility that refines used transformer oil. This site (part of the Stein Industrial Park) was scheduled for construction prior to the completion of the industrial park infrastructure improvements; therefore, we had to prepare special phased construction plans to incorporate supplemental erosion control and storm water management features which could be eliminated upon completion of the park infrastructure. The plans also included the design of oil spill containment facilities and a new railroad spur to serve the facility.

 

Canton Industrial Park – Caroman Corp.

Selected as the consultant to prepare the engineering plans for this 52 acre Industrial Park, we provided engineering services for the planning and design of all roadways, storm water management system, water distribution system, sanitary sewer system, site grading, wetland management and erosion and sediment control.

 

Cloverleaf Cold Storage Facility – KC Engineering Co.

Site development plans were prepared for the 130,000 square foot cold storage facility. The design plans included a new railroad spur for which we worked closely with the Norfolk Southern Railroad Company; the details of the spur included a stream crossing with a 20’ span structural plate arch culvert. Approximately 220,000 cubic yards of earth was moved to prepare the site for the new facility.

Back 
 
Scroll to Top